Cock Bridge: Where the Road Meets the River

Situated on the historic boundary between Great Harwood and Whalley, Cock Bridge is more than a crossing of the River Calder. For over three and a half centuries it has been a point of passage, exchange and enterprise — a place where road and river, and traveller and host have met.
Long before a bridge stood here, the crossing was known as Feinds Forde. It was hazardous in times of flood, and it is likely that many travellers preferred to cross at Whalley, where a bridge existed before 1317 and is mentioned in documents relating to Whalley Abbey. A plan drawn in 1603 — before Cock Bridge was built — shows the route travelling over the Nab and down towards Whalley, following what we now know as Dean Lane and the road over Whalley Nab.

Significantly, the 1603 plan shows no buildings in the vicinity of Feinds Forde. The land on both sides of the river was already farmed “in severalty” — that is, held by individuals rather than in common. To the east lay demesne land belonging to the Hesketh family; to the west of the road was land owned by the Nowells, whose dwelling stood across the river at Read.
The plan also preserves earlier names for sections of what we now call Whalley Road. From the Calder to Martholme Lane it was “Roger Hey Lane,” named for the nearby farm south of Cock Bridge. From there to Mill Lane it was “Thrunny More Lane,” after fields to the east. The importance of this route is underscored by the directional annotations on the plan: roads leading towards Colne, Clitheroe, Lancaster, Halifax and Manchester. Even before the bridge, this was no minor track and from the late 1500s there were disputes recorded about passage along this section of the King’s Highway, at times leading to violent altercations and there were many legal challenges. This instance is just one: A True Bill for Riot Onlie 1603
Building the Bridge, 1634–35
In the winter of 1634/35, four masons — James Whithead, Richard Smalley, Raph Morris and Richard Brotherton — petitioned the Preston Sessions about the construction of a bridge at the ford. The first bridge, built the year before, was short-lived, it was damaged or destroyed by flooding soon after completion, a reminder of the Calder’s volatility.
The masons sought public funds to rebuild, despite having contracted to make good any failure within the first year. Their request was granted. With the bridge secured, the crossing became fixed and reliable. Opportunity followed.

Lawrence Walmsley and the First Inn
In 1675 an enterprising man named Lawrence Walmsley petitioned to build a “habitation” at the bridge. The petition already describes him as an alehouse keeper, though it does not say where his earlier premises stood. Later records suggest that the building, with its gardens and outbuildings, occupied no more than twenty perches — a modest plot, probably an encroachment onto the roadside verge rather than land taken from enclosed fields.
Lawrence raised his family at Cock Bridge. Parish registers of Great Harwood and Whalley record five children; another son, Lawrence — whose baptism has not been found — is named, along with daughters Joyce and Alice, in his father’s will of 1706. The will and accompanying inventory provide a rare glimpse into life at a late seventeenth-century roadside inn.
This reproduction of the inventory of Lawrence Walmsley gives us a glimpse into the life of an early 18th century inn.
The dedicated brew house, the number of dishes and drinking vessels in the buttery and the number of seats and tables in the room over the cellar all point to a busy, well used roadside inn.
There are only four beds listed, suggesting that overnight accommodation may not have been offered at this time.

With the bridge in place, this had become a significant route linking Manchester and Bury with Whalley, Clitheroe and beyond. The Walmsleys would have met travellers far removed from their own district. Lawrence’s daughter Alice married Thomas Grundy of Manchester before her father’s death; Joyce later married John Crompton of Pilkington in Prestwich and was buried there in 1739. The inn was already a place of outward-looking connections.
Alehouse recognizances — pledges to maintain good order — show that successive Walmsley men, Lawrence, his son Lawrence, and his grandson John, held the licence until at least 1772, when John last appears in the records. As explored in The Cross Axes and Quiet Power: The Women of the Tenement, it was often the wives and daughters who sustained the day-to-day running of such establishments while the licensed men pursued other trades. Although direct evidence is less explicit here, it seems likely that Cock Bridge followed the same pattern.
In 1686 a John Walmsley of “Feinsford Bridge” was named as father of an illegitimate son, Lawrence. Probably a relative of Lawrence the innkeeper, he was described as a saddler — a useful occupation at a busy crossing. Interestingly, when the second Lawrence Walmsley baptised his children, he too was sometimes described as a saddler, despite appearing in recognizances as licence holder, which reinforces the idea that the day-to-day running of the inn would have been the duty of the women in the family. The inn not only refreshed travellers, but it also supported their horses and equipment, a family enterprise.
The Holding: Cottage and Croft
A Hesketh estate survey of 1735 lists Lawrence Walmsley as tenant of a “cottage and croft, 20 perches,” at an annual rent of £1 5s — comparatively high for such a small holding. A lease of 1742 repeats the description, reinforcing continuity of occupation. Twenty perches represent a modest but clearly defined plot, consistent with an inn standing at the roadside with limited adjoining land.

The family also acquired additional land across the road by the river. A lease of 1753 names John Walmsley (grandson of the first Lawrence), his wife Martha, and daughter Joyce as nominated lives. John had married Martha Cunliffe, daughter of John Cunliffe of Northwood in Padiham, who left bequests to Martha and her children — Margaret, Martha, Hannah and Joyce — in his will.

The Cunliffe family were descended from the Cunliffes of Hollins. A brother of the Martha who married John Walmsley, Thomas Cunliffe, settled in Great Harwood and was an ancestor of Roger Cunliffe, co-founder with William Brooks of Cunliffe, Brooks Bank, later absorbed into Lloyds Bank.
None of John and Martha Walmsleys daughters married. Hannah survived them all and was the last Walmsley tenant at Cock Bridge. Notably, she does not appear in alehouse recognizances and after John’s final appearance in 1772, the identity of the licensee becomes uncertain. Although no burial for John has come to light, it is possible he died shortly after 1772, and, as happened at the Cross Axes, his daughters may have continued to run the inn, although not appearing in the alehouse recognizances.
Around this time, James Lomax of Clayton-le-Moors began acquiring property locally. Records show his purchase of “Cock Orchard,” eight perches in the tenancy of John Walmsley, as well as Roger Hey farm nearby. A note suggests that this purchase included Cock Inn Farm, signalling the gradual consolidation of property around the bridge.

Industrial Ambition and Uncertain Years
The later eighteenth century was a time of profound change in Lancashire as the industrial revolution gathered pace. Factories and mills were being built around the county and these all depended on reliable means of transport both for the raw materials and the finished goods. The King’s Highway, which ran through Great Harwood from the Hyndburn Brook – the border between Clayton le Moors and Great Harwood – to Cock Bridge, was in a poor state of repair and the approach to the bridge was very steep. The setting up of a Turnpike Trust in 1789 ensured that the road was improved and maintained using tolls collected from those using the road. Although Great Harwood didn’t have any large mills or factories before the 1840s the gradual improvements to the transport network, particularly the roads, would make the town a more attractive place in which to site a business.
In 1801 Richard Grimshaw Lomax, son of James, drafted an agreement with Hannah Walmsley proposing the construction of a water-powered cotton mill near the Calder. Several small enterprises had already been established along local streams, and the Peel brothers operated a size house in the town around this period. However, no completed agreement or subsequent reference to such a mill has been found, suggesting the scheme did not go ahead even though this must by now be a very desirable location on the new turnpike road.
The identity of the innkeeper during these years remains unclear. Licensing records list several innkeepers annually but do not specify premises. Hannah Walmsley died in 1812 and in her will bequeathed most of her estate to Margaret Fielden, daughter of James Fielden, farmer.
The Hitchins, Ridings and the Age of Coaching
The next confirmed innkeeper is John Hitchen, recorded in Lomax lease registers at Cock from 1817 to 1836. In 1819 he leased 15 acres, 2 roods and 16 perches; at the same time Edward Noble held 7 acres, 2 roods and 7 perches at Lower Cock — figures that correspond closely with the known farm sizes.
By 1841 the census names Robert Riding as publican. He appears to have prospered; in July 1849 he is recorded holidaying with his family in Blackpool, then emerging as a seaside resort. By 1851, however, Joseph Howard had taken over as innkeeper and farmer of 15 acres.

The first detailed Ordnance Survey map of the area (surveyed in 1844) shows three buildings associated with Cock Bridge Inn, and to the north, a building marked “Smithy.” While no smith is clearly identifiable in the 1841census, by 1851 Lawrence Waterhouse, coach smith, was at the inn, and next-door William Marshall, wheelwright and coachbuilder employing six men. In 1861 Richard Marshall, formerly in William’s household, is listed as coachbuilder nearby. Thomas Monk of Roger Hey described himself as coachsmith at his marriage in 1865, and it is probable he was working at the Cock Bridge business. Alfred Walker, who had a successful coach building business, setting up in Accrington in 1862, but his obituary stated that he had earlier worked at Cock Bridge.
From saddlers to coachbuilders, the bridge supported not only refreshment but the practical needs of travel.
The Smiths and the Game Cock
Great Harwood was relatively late in adopting factory-based weaving; its first mill opened in 1844. Thereafter growth accelerated, with families such as the Catteralls and Smiths prominent in early mill development.
Ann Smith, daughter of Henry Smith and sister of mill owner Robert Smith and innkeeper Thomas Smith, became a long-term landlady of the inn, by then increasingly known as the Game Cock. Widowed in 1851 on the death of her first husband, Thomas Boardman, she married Joseph Howard in 1854. Joseph was also a widower, and together they blended their families. At her marriage, a notice in the local newspaper said her first husband had been an innkeeper, but there is no other evidence of this, other records naming him as a cabinet maker, but may indicate that Ann was the person in charge of whichever inn it may have been. Innkeeping was certainly a family trait: her brother Thomas was innkeeper at the Grey Horse at Cliff before his untimely death in 1839.
Tragedy struck Ann’s family in 1859 when Joseph’s nine-year-old son John was killed in a naphtha explosion in a workshop beside the inn — likely connected with the coachbuilding trade. Joseph himself was badly burned. In 1865 he was found dead in bed. Although reportedly sober the previous day, it was noted at the inquest that he had been intemperate for some years. It is possible he found it difficult to deal with the horrific death of his son.
After 1861 no coachbuilding or smithing trades are recorded nearby. By the 1890s Ordnance Survey maps the former workshop buildings appear as cottages, the smithy trade apparently gone.

Ann Howard retained the licence after Joseph’s death and continued as landlady until at least 1888, when she appears in a directory and may well have been the “cheerful old lady” described by a visiting rambler. She died in 1891.1
The Brewery Era
In 1895 Helen Trappes-Lomax leased the inn to Nuttall & Co. Ltd., brewers of Blackburn, marking the beginning of commercial brewery ownership. At some point between 1895 and 1932 the property passed to Massey’s Burnley Brewery Ltd., which applied for structural alterations. Through the early twentieth century a succession of tenants followed: John Pickup, Thomas Hanson, James Walker, John Butterworth and John W. Clark, who in 1939 was described as a property repairer and builder despite living at the inn.
The work of the inn, despite changing times and changing road use, remained to serve the needs of those using the road. The photograph at the beginning of the page shows petrol pumps near to the cottages and men on bikes, possibly enjoying a ride out on a fine day. The Accrington Observer carried an advertisement in June 1928 for the Game Cock Inn, proprietor John Buttrworth, “Splendid Catering for Motorist Picnic Parties. Make the Game Cock your first call and be assured of a welcome.”

During the Second World War James Smith, his wife Elsie and their daughter Marion came to the Game Cock from another Massey-owned house, the Coldwell Inn and Farm at Briercliffe near Nelson. The inn was still a working farm, by then extending to thirty-six acres. Marion, now Marion Sycamore of Whalley, later published a memoir describing life at the inn in the post-war years. She recalls a sweet shop next door and trade from Moreton Hall, across the river in Whalley, then used for officer training. After the war, when Polish refugees were housed there, trade declined as resources were scarce.

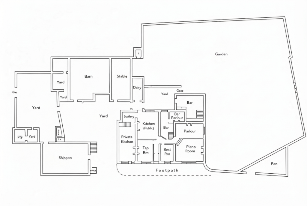
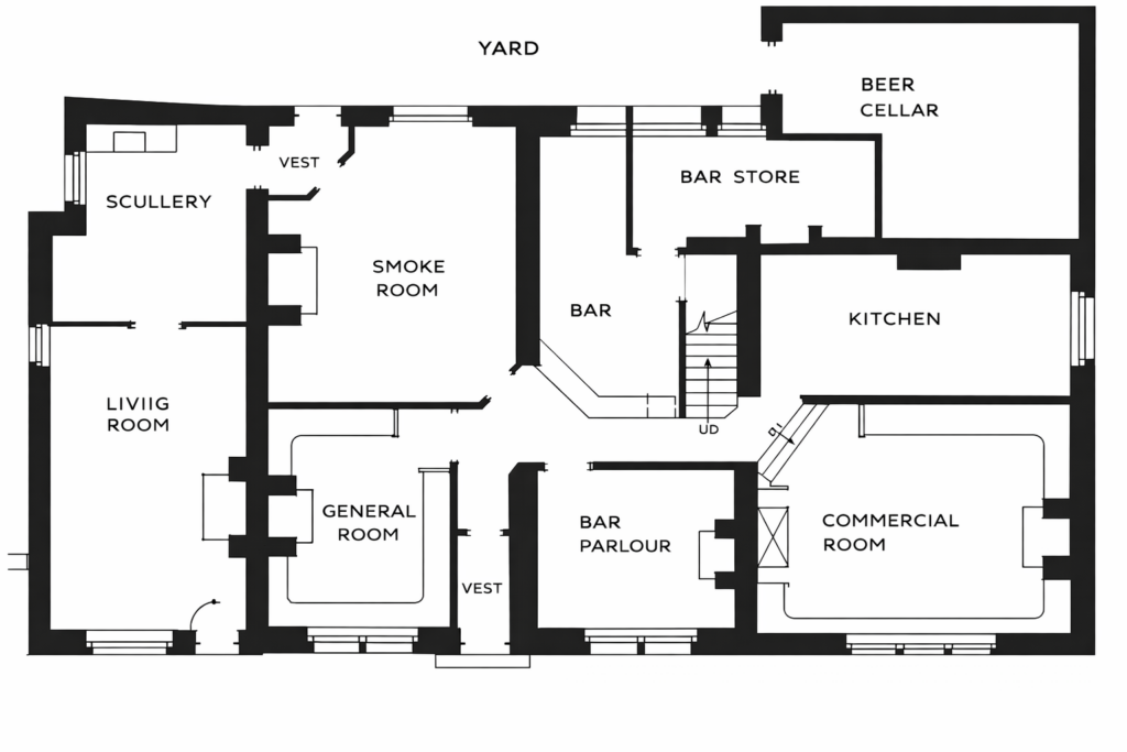
Plans submitted by Massey’s in 1959 show farm buildings still standing. The large barn had disappeared by 1961, and by 1991 the remaining farm buildings were gone. An extension had been added to the southern gable of the inn.




351 Years at the Crossing
Travel has changed beyond recognition. Where once long journeys demanded rest for man and horse, modern transport carries us far without pause. An isolated roadside position, once an advantage, can now be a challenge for a business centred on hospitality.
In recent years, the focus has shifted from public house to restaurant, and most recently to an Indian restaurant. Yet whatever its present form, the building continues a tradition begun in the 1670s: more than 350 years of offering shelter, refreshment and sociability at the meeting of road and river.

Sources:
Lancashire Archive, ‘Petition of James Whithead et al. concerning the building of a bridge over the Calder at Feinds Forde’, QSB/1/145/52 (1635).
Lancashire Archive, ‘Presentment concerning a riot in Thromynge More Lane in Great Harwood, on 30 May 1603’, DDKE/2/15/2 (1603).
The National Archives, ‘Income or poll tax for disbanding and paying armed forces’, E/179/250/4 (1660).
Lancashire Archive, ‘Lawrence Walmisley permission for habitation’, QSP 435/32 (1675).
Lancashire Archive, ‘Probate: Lawrence Walmisley’, WCW/Supra/C286/43 (1706).
Lancashire Archive, ‘Note book of leases’, DDLX 12-7 (1724).
Manchester Archive, ‘Survey of the Estates of Thomas Hesketh’, L1-35-5 (1735).
Lancashire Archive, ‘Lease to Lawrence Walmsley’, DDLX 9-1 (1742).
Private collection, ‘Plan: 1763 from JM Trappes Lomax’ (1763).
Lancashire Archive, ‘Great Harwood and Harwood Moor 1764’, DDLX 9-1 (1764).
Lancashire Archive, ‘John Walmsley of Great Harwood, inn-keeper. 1 Jan 1765’, DDHE/76/22 (1765).
Lancashire Archive, ‘Probate: John Cunliffe’, WCW/Supra/C462B/45 (1768).
Lancashire Archive, ‘DDLX 9-1 1774’, DDLX 9-1 (1774).
Lancashire Archive, ‘Draft Agreement Description Hannah Walmesley of Gt..Harwood, widow and Sir T.D.Hesketh’, DDHE/82/3 (1801).
Lancashire Archive, ‘Sale Particulars’, DDLX 1755/1 (1803).
Lancashire Archive, ‘Survey Higher Town 1805’, PR 165 (1805).
Lancashire Archive, ‘Probate: Hannah Walmsley’, WCW/Supra/C682/14 (1812).
Lancashire Archive, ‘Rent ledger 1817-1847’, DDLX 1-1 (1817).
Baines, E., History, Directory & Gazetteer of the County Palatine of Lancaster, Harwood, Great. Lancashire Library (1825).
Pigot & Co., Pigot’s Directory of Lancashire, Harwood, Great: Hitchin, John, ‘Cock’, Lancashire Library (1828).
Lancashire Archive, ‘Cock Bridge Inn, otherwise Game Cock Inn, Great Harwood, by Simpson and Duckworth, Blackburn, for Helen Trappes-Lomax, owner, and Nuttall and Co. Ltd., lessees’, PSBL/20/44 (1902).
Lancashire Archive, ‘Proposed alterations to Game Cock Inn, Great Harwood, by Hitchon and Pickup, Burnley, for Masseys Burnley Brewery Ltd., approved 6 Apr 1932’, PSBL/20/96 (1932).
Lancashire Archive, ‘Proposed alterations to Game Cock Inn, Great Harwood, by Hitchon, Pickup and Halsted, Burnley, for Masseys Burnley Brewery Ltd. approved 7 Jan 1959, with attached letter, 27 Jul 1959’, PSBL/20/93 (1959).
Lancashire Archive, ‘Proposed alterations to Game Cock Inn, as in PSBl/20/93, approved 18 Jun 1958, with attached letter, 3 Jan 1959’, PSBL/20/94 (1959).